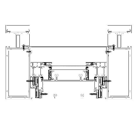
Modell: FVS-01
Wir stellen das FVS-01 vor, eine fortschrittliche Lösung für die natürliche Fassadenlüftung. Mit seinem schlanken und modernen Design sind diese Fassadenlüfter in einer Standardgröße von 204mm erhältlich oder können an Ihre spezifischen Bedürfnisse angepasst werden.
Hauptmerkmale:
Zusätzliche Vorteile:
Entscheiden Sie sich für den Fassadenlüfter FVS-01 und profitieren Sie von einer fortschrittlichen und individuell anpassbaren Lüftungslösung. Nutzen Sie das volle Potenzial Ihres Gebäudelüftungssystems aus.
Gerne stehen wir Ihnen zur Verfügung, um noch heute Ihre spezifischen Anforderungen zu besprechen.
Hauptmerkmale:
- Schalldämmung: Erleben Sie Ruhe und Stille mit einer Einschaltschalldämmung von 26 dB und einem Ausschaltgeräuschpegel von 36 dB.
- Lüftungsfläche: Passen Sie die Lüftungsflache an, um einen optimalen Luftzirkulation in Ihrem Raum zu gewährleisten.
- Luftstrom: Erzielen Sie eine optimale Luftzirkulation mit einer Leistung von 1064m³/m·h (10Pa).
- Winddruckbeständigkeit: Widerstehen Sie anspruchsvollen Bedingungen dank der anpassbaren Winddruckfestigkeit des FVS-01 von 4500Pa und passen Sie die Konfiguration an.
- Wärmedämmung: Genießen Sie eine ausgezeichnete Wärmedämmung mit einer Wärmedämmleistung von 2.3W/㎡·K und reduzieren Sie so Energieverluste.
- Luftdichtheit: Bewahren Sie eine kontrollierte und abgedichtete Umgebung mit überlegener Luftdichtheit von weniger als 1.5m³/(㎡·h).
- Wasserdichtheit: Gewährleisten Sie eine zuverlässige Wasserbeständigkeit mit einer Wasserdichtigkeit von 750Pa.
Zusätzliche Vorteile:
- Innovatives Design: Das FVS-01 ist mit verschiedenen Fassadenkonstruktionen kompatibel, wodurch es vielseitig für unterschiedliche Gebäudekonfigurationen einsetzbar ist.
- Flexible Öffnungsarten: Die Drehstruktur ermöglicht ein reibungsloses Öffnen, selbst in engen Spalten. Sie ermöglicht auch die Installation von Insektenschutzgittern auf der Außenseite und bietet eine flache Innenseite.
- Verbesserte Abdichtung: Die hervorragende Abdichtungsstruktur minimiert Luftlecks und gewährleistet eine kontinuierliche und effektive Leistung.
- Erweiterte Lüftungsfläche: Vergrößern Sie die Lüftungsfläche, um den Luftaustausch und die Raumluftqualität zu verbessern.
Entscheiden Sie sich für den Fassadenlüfter FVS-01 und profitieren Sie von einer fortschrittlichen und individuell anpassbaren Lüftungslösung. Nutzen Sie das volle Potenzial Ihres Gebäudelüftungssystems aus.
Gerne stehen wir Ihnen zur Verfügung, um noch heute Ihre spezifischen Anforderungen zu besprechen.







